Ȩ
·Î±×ÀÎ
°í°´¼¾ÅÍ
ȸ»ç¼Ò°³
Àλ縻
¿¬ Çõ
ÀÎÁõ¼ ¹× ƯÇãÁõ
ã¾Æ¿À½Ã´Â±æ
Çdz»ç´Ù¸®¼Ò°³
Çdz»ç´Ù¸®¼Ò°³
Á¦Ç° ±¸¼º
»ç¾ç ¹× ½Ã°ø¹æ¹ý
Ȩ³×Æ®¿öÅ© ½Ã½ºÅÛ
»ç¿ë¼³¸í¼
»óÇüÄ«¹Ù À¯Çüº°¼³¸í
½Ã°øÇ¥ÁØÈ
°ü·ÃÀÚ·á
½Ã°ø ¹× Àû¿ë»ç·Ê
°øÁö»çÇ×
Çdz»ç´Ù¸®¼Ò°³
ÇÏÇâ½Ä Çdz»ç´Ù¸® Á¦ÀÛ SJÅ×Å©À©
Çdz»ç´Ù¸®¼Ò°³
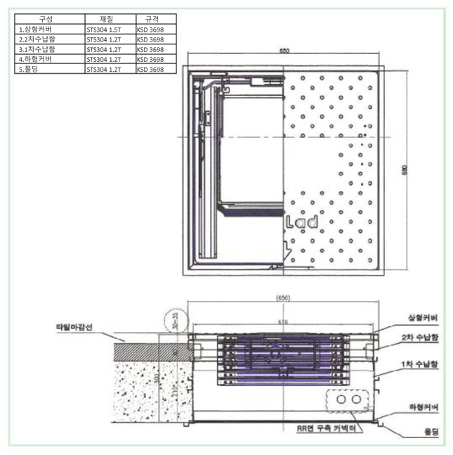
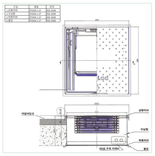
Á¦Ç° ±¸¼º
»ç¾ç ¹× ½Ã°ø¹æ¹ý
Ȩ³×Æ®¿öÅ© ½Ã½ºÅÛ
»ç¿ë¼³¸í¼
»óÇüÄ«¹Ù À¯Çüº°¼³¸í
½Ã°øÇ¥ÁØÈ
»ç¾ç ¹× ½Ã°ø¹æ¹ý
´ëÇѹα¹ÀÇ ¾ÈÀü SJÅ×Å©À©ÀÌ ¸¸µé¾î °©´Ï´Ù.
1. »ç´Ù¸® »ç¾ç
Á¢ÀÌ½Ä »ç´Ù¸®
½½¶óÀ̵ù »ç´Ù¸®
Ư¼ö »ç´Ù¸®
2. ½Ã°ø¹æ¹ý
1 ¹Ù´ÚÀÏÄ¡Çü ¸ôµùŸÀÔ ½Ã°ø
2 ÈÄÃëºÎ ½Ã°ø
3. ¼ö³³ÇÔ ½Ã°øµµ
Ç¥ÁØ ¼ö³³ÇÔ ½Ã°øµµ
ÅõÆ®·¢ ¼ö³³ÇÔ ½Ã°øµµ
4. ½Ã°ø ¹èÄ¡µµ
Ç¥ÁØ ¼ö³³ÇÔ ½Ã°ø ¹èÄ¡µµ
ÅõÆ®·¢ ¼ö³³ÇÔ ½Ã°ø ¹èÄ¡µµ